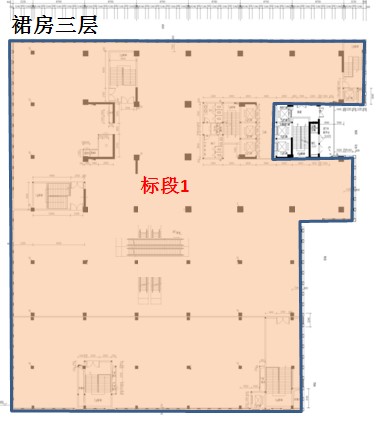
萬融國際301室向社會公開招租,招租標段設為:A1標段萬融國際大廈301室,共計出租面積約3385㎡(以現場測量為準)。現公開出租區域,見下圖:
一、競租鋪面平面布局圖
1、萬融國際大廈(A1標段)


二、標的物情況
1、業態、底價及投標保證金額度:
|
標段編號 |
使用面積 約(㎡) |
經營業態 |
競租保證金 (人民幣:萬元) |
承租月租金底價 (人民幣:元/㎡/月) |
承租月租金限價 (人民幣:元/㎡/月) |
|
A1標段 |
3385 |
酒店、教育培訓 |
26.5 |
25.88 |
33.65 |
據時詳見項目現場公告;競拍以標段為單位,單位面積僅供參考,競租前如有調整,以最終競租前公布信息為準。13元/㎡/月物業費另付。
2、租賃期限:八年;
3、租金單價遞增方式:按合同年,前三年不遞增,第四年起在第三年的基礎上遞增5%,第七年起在第六年的基礎上遞增5% 。
4、免租期:八個月,免租期內僅減免租金不減免物業費;
5、交付標準:現狀交付,經營戶承租期間承租范圍內的所有能耗費由承租戶自行承擔;
6、租賃費用支付方式:季度支付,先付后用;
7、競租保證金:具體金額詳見上表;競租保證金采用競租人提供對應金額的銀行本票。競租人的本票出租方現場收取,中標的競租人《租賃合同》簽約后所繳納的本票自動轉為部分租賃保證金或租金,未中標的競租人所繳納的本票招租方于競租結束后5個工作日內退還。
8、裝修:中標商戶的裝修方案需通過出租方書面確認后方可進行裝修施工。
9、退租撤場:經營期間承租方自行添置的可移動部分可撤除,其他設施未經招租方同意一律不得撤除;
10、其他:
1)承租方使用租賃場地經營而產生的各項國家稅費由承租方自行負責。
2) 租賃期內商鋪未經得產權方書面許可,承租方擅自轉讓、全部或部分轉租、變更經營業態及范圍的視為承租方單方面合同違約,出租方有權提前終止合同。
三、競租規則

競租規則:
1、競租人報名需提供材料:競租人身份證明、個人征信證明、《競租報名表》、《競租承諾函》、銀行本票。品牌商戶需提供品牌證明材料(品牌商標證明或品牌授權書選址意見書); 報名人需自行解決與該場地原租賃方的交接事宜,并簽署《承諾書》。
2、競租人資格界定:個人征信證明有五次以上不良記錄不予審核通過;競租人在競租保證金繳納截止時間之前將競租保證金繳納至招租方指定賬戶,方為有效競租人。
4、繳納競租保證金的有效競租人,需于規定時間參與競租,未按時到場視為棄權,繳納的保證金不予退還;
5、中標人發生如下情況,視為惡意競租,出租方有權沒收保證金:
a.未能在規定時間內與招租方簽訂《租賃合同》的;
b.應標單元,當天競拍無人應價的或應標價格低于出租方底價的;
c.中標后棄權的;
d.擅自改變經營業態、品牌、中標人名稱變更的;
e.未能按時繳清應付款項的;
6、招租方在中標人中標后,現場公布中標人姓名、中標價格、中標業態,并在招租工作完成的次日于現場公示中標信息(中標人、中標業態)五天。 公示五天后如無第三方提出異議,招租方與中標人于一周內簽訂簽訂《租賃合同》,同時中標人向招租方付清首期租賃費用和租賃保證金。未中標的競租人所繳納的本票招租方于競租結束后5個工作日內無息退還。
四、競租流程
1、競租流程:現場公示、現場報名、資料審核、公開競租、中標信息公示、簽約繳費
2、競租報名、繳納競租保證金截止時間:2021年1月21日下午16:00分
3、競租保證金繳納方式:銀行本票
4、競租時間、競租地點:招租方另行通知
蘇州綠原城鄉建設有限公司
2021年1月7日
下一篇:疫情期間減免租金公示